
Architecture encompasses all of the dimensions of the world as we know it: the 3 dimensions of space – length, breath and height – plus that most mysterious of dimensions, time. Such ‘spacetime’ encompasses the physical world and the invisible, or, metaphysical realm which characterises the Universe.
Because architecture allows us to engage with the 4 dimensions of the known world it is an invaluable tool in the quest to engage with life and to live our lives fully in that consciousness.
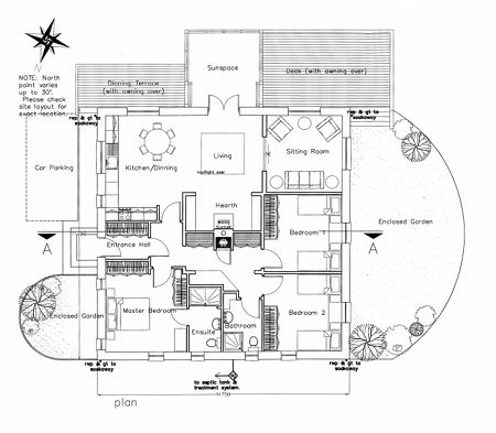
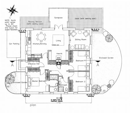
The creation of architecture relies on two primary activities – design and construction. In the design process we articulate our physical and metaphysical desires. These are then embodied in the constructed building.
When we wish to design eco-buildings, in particular dwelling places, we must first express what this means to us before we can hope to construct it successfully. To do this we must engage with the physical as well as the metaphysical dimensions of our lives – our physical bodies, the environment, our feelings, our aspirations, our hopes, our imaginations, our dreams.

We are natural sheltemakers. Millions of people worldwide still build their own homes. Knowledge of how to do this is in our genes. We simply need to tap into this knowing in order to re-engage with the process of sheltermaking.
Generally, architecture is presented as being complex when, in fact, it can be very simple – literally four walls and a roof. It is life which is complicated and full of hidden meaning. When we accept this fact, and the nature of this invisibility, we can begin to distinguish between the visible and invisible aspects of buildings. This allows us to interpret the abstract nature of inner space as a reflection of our own ‘invisible’, or, inner selves.
The Living Architecture process emerged from the original Be Your Own Architect Courses first held in 1989. These Courses revealed the deep psychological engagement that results from direct involvement in the building design and construction process. This emotional engagement forms a vital link between architecture and life. By recognising the emotional dimension of architecture and by making it a vital part of the design and construction process, it becomes possible to unite the inner world of our imaginations and dreams with the outer world in which we physically exist.
Essentially, the interior of a building represents our emotional inner world, the vehicle of our meaningful progression through life, while the exterior forms the protective interface where inner and outer worlds meet. The emotional engagement made possible by such a ‘living’ architecture allows one to establish or enhance connections with the higher dimensions of life.
Formal architecture began to abandon its metaphysical dimension in the 18th century with the predominance of rational thinking and the growth of the Industrial Revolution. Domestic architecture was similarly affected with an abandonment of traditional sheltermaking in favour of new utilitarian designs suited to the emerging industrial societies. This Machine Age effectively deadened buildings by severing their links to the deeper aspects of life. Perceptions about architecture have changed as a result, to the point where the facades of buildings are now seen to represent the ‘architecture’ rather than the inner spaces and the feelings that can be experienced within them.
The loss suffered by the abandonment of traditional sheltermaking has been grievous. The Market Economy has ruthlessly exploited this loss by offering but a single way of obtaining shelter – by taking out a mortgage. The effect of this has been to lock people into a quagmire of credit and consumption from which there is no apparent escape.
The destructiveness of the Machine Age is thankfully now plain for all to see. Calls for change abound. More than anything it is the type of shelter we create that will allow such changes to be realised. By creating a ‘living architecture’ that nourishes us emotionally as well as physically we can begin the process of eco-living. No one can do this for us.
The eco-living experience is not something that can simply be bought, it is a way of life, something we are drawn towards. Where it engages our emotions we know that we are alive. That is the starting point on the path to ‘living one’s architecture’. The Sheltermaker’s Manual and EconoSpaceMaking articulate this process in practical and easily accessible way.





































